Bytový dom je dispozične riešený do štyroch podlaží. Prvé dve podlažia pozostávajú z jednoizbových a dvojizbových bytov. Pre tretie a štvrté podlažie si developer pripravil možnosť nadštandardne osloviť budúcich majiteľov bytov. Dal im možnosť zmeny dispozičného riešenia jednotlivých bytov podľa vlastnej predstavy.



















Prvé poschodie
Druhé poschodie
Tretie poschodie
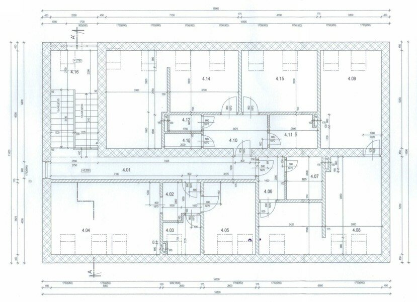
Štvrté poschodie


































